NEUE FENSTERFRONT - PRÄZ

2026

Bauherrschaft: Privat

Projektphasen: Entwurf, Baueingabe, Ausführung, Umsetztung

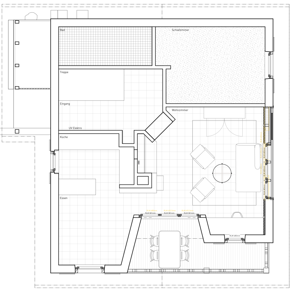
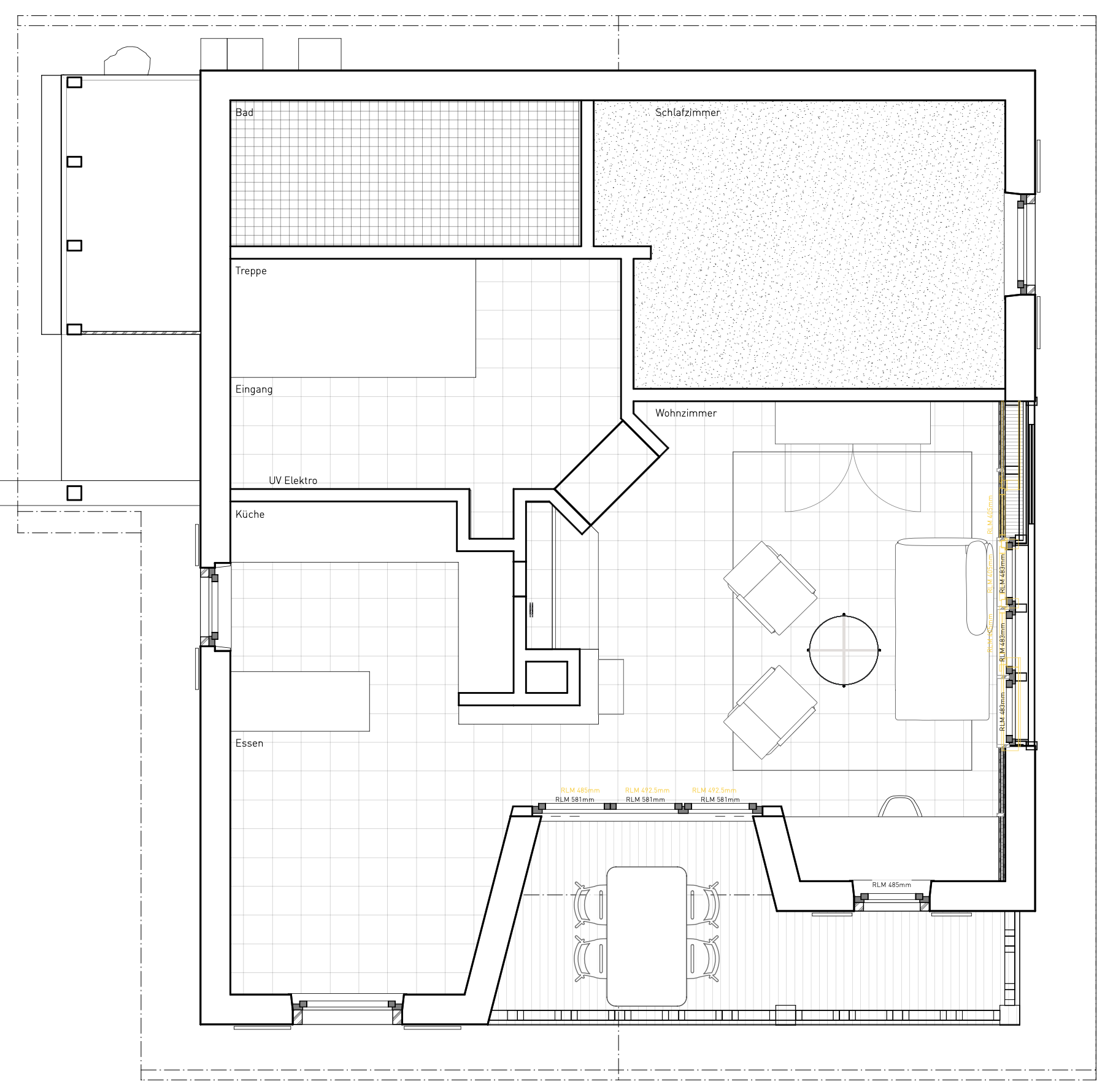
Durch einen angemessenen Eingriff sollen die kleinen Fenster des bestehenden Wohnzimmers eine gewisse Großzügigkeit erhalten, ohne dabei den Charme des alten Bündner Hauses wegzunehmen.